





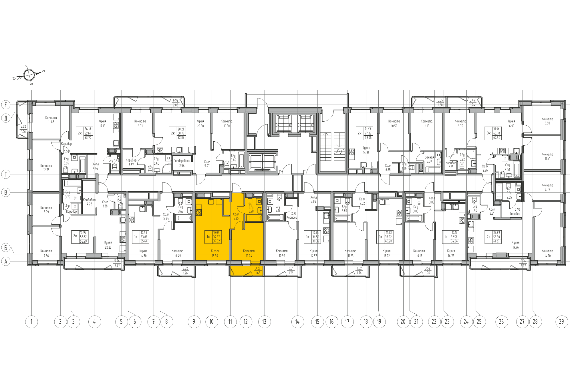
2-к eвро 41.2 м²
-
Со скидкой 20%
Скидка действует при 100% оплате или не субсидированной ипотеке
- Срок сдачи — 2 кв. 2026
8 843 200 ₽
11 054 000 ₽
- Бронь платная, срок 3 дня
после подтверждения - Задать вопрос
- Очередь 7 очередь
- Корпус 9 корпус
- Этаж 2 этаж из 22
- Номер 16
- Тип 1-58Y Все квартиры
- Отделка Комфорт светлый Подробнее
- Цена за м² 214 641 ₽
- Комфорт-класс
- Кухня проходная
- Приватный двор
- потолки 2,75 м
- С балконом
Скидка 20%
Скидка 20%. Скидка действует при 100% оплате или не субсидированной ипотеке.
Жить в окружении зелени, просыпаясь под шелест листьев и пение птиц, наблюдать за сезонными перевоплощениями природы за окном и наслаждаться чистым воздухом. Вдумчивые прогулки по зеленым аллеям или же пробежки по экотропам Юнтоловского заказника.
В ПАРК-КВАРТАЛЕ все окружение задает тон гармоничному и бережному отношению к себе.




Одобрение ипотеки по 2 документам за 5 минут
Бесплатная консультация с кредитным специалистом по номеру 8 (812) 604 04 04 ежедневно с 9:00 до 18:00

Рядом с домом
Сделайте проживание в своём жилом комплексе ещё удобнее

Список рекомендованных помещений
2-к eвро 35.69 м²
- 7 очередь
- 6 корпус
- 2 этаж
- Срок сдачи 1 кв. 2026
10 348 900 ₽
- Комфорт-класс
-
+3
Приватный двор потолки 2,75 м С балконом
2-к eвро 36.5 м²
- 6 очередь
- 11 корпус
- 2 этаж
- Срок сдачи 4 кв. 2022
7 901 550 ₽
2-к eвро 36.77 м²
- 7 очередь
- 5 корпус
- 2 этаж
- Срок сдачи 1 кв. 2026
10 342 500 ₽
- Комфорт-класс
-
+2
Приватный двор С балконом
2-к eвро 38.32 м²
- 7 очередь
- 8 корпус
- 2 этаж
- Срок сдачи 2 кв. 2026
10 337 600 ₽
- Комфорт-класс
-
+3
Приватный двор потолки 2,75 м С балконом
2-к eвро 39.02 м²
- 7 очередь
- 8 корпус
- 2 этаж
- Срок сдачи 2 кв. 2026
10 588 500 ₽
- Комфорт-класс
-
+4
Кухня проходная Приватный двор потолки 2,75 м С балконом
2-к eвро 40.28 м²
- 7 очередь
- 8 корпус
- 2 этаж
- Срок сдачи 2 кв. 2026
10 915 600 ₽
- Комфорт-класс
-
+4
Кухня проходная Приватный двор потолки 2,75 м С балконом
2-к eвро 40.69 м²
- 7 очередь
- 9 корпус
- 2 этаж
- Срок сдачи 2 кв. 2026
10 802 600 ₽
- Комфорт-класс
-
+4
Кухня проходная Приватный двор потолки 2,75 м С балконом
2-к eвро 42.06 м²
- 7 очередь
- 6 корпус
- 2 этаж
- Срок сдачи 1 кв. 2026
11 686 300 ₽
- Комфорт-класс
-
+3
Приватный двор потолки 2,75 м С балконом
2-к eвро 42.44 м²
- 7 очередь
- 6 корпус
- 2 этаж
- Срок сдачи 1 кв. 2026
11 303 600 ₽
- Комфорт-класс
-
+5
Многосторонняя Кухня проходная Приватный двор потолки 2,75 м С балконом
2-к eвро 44.48 м²
- 7 очередь
- 5 корпус
- 2 этаж
- Срок сдачи 1 кв. 2026
11 177 300 ₽
- Комфорт-класс
-
+2
Приватный двор С балконом
2-к eвро 47.45 м²
- 7 очередь
- 5 корпус
- 2 этаж
- Срок сдачи 1 кв. 2026
11 191 800 ₽
- Комфорт-класс
-
+4
Раздельный СУ Кухня проходная Приватный двор С балконом
Попробуйте позже
