 
                
             
                
             
                
             
                
             
                
             
                
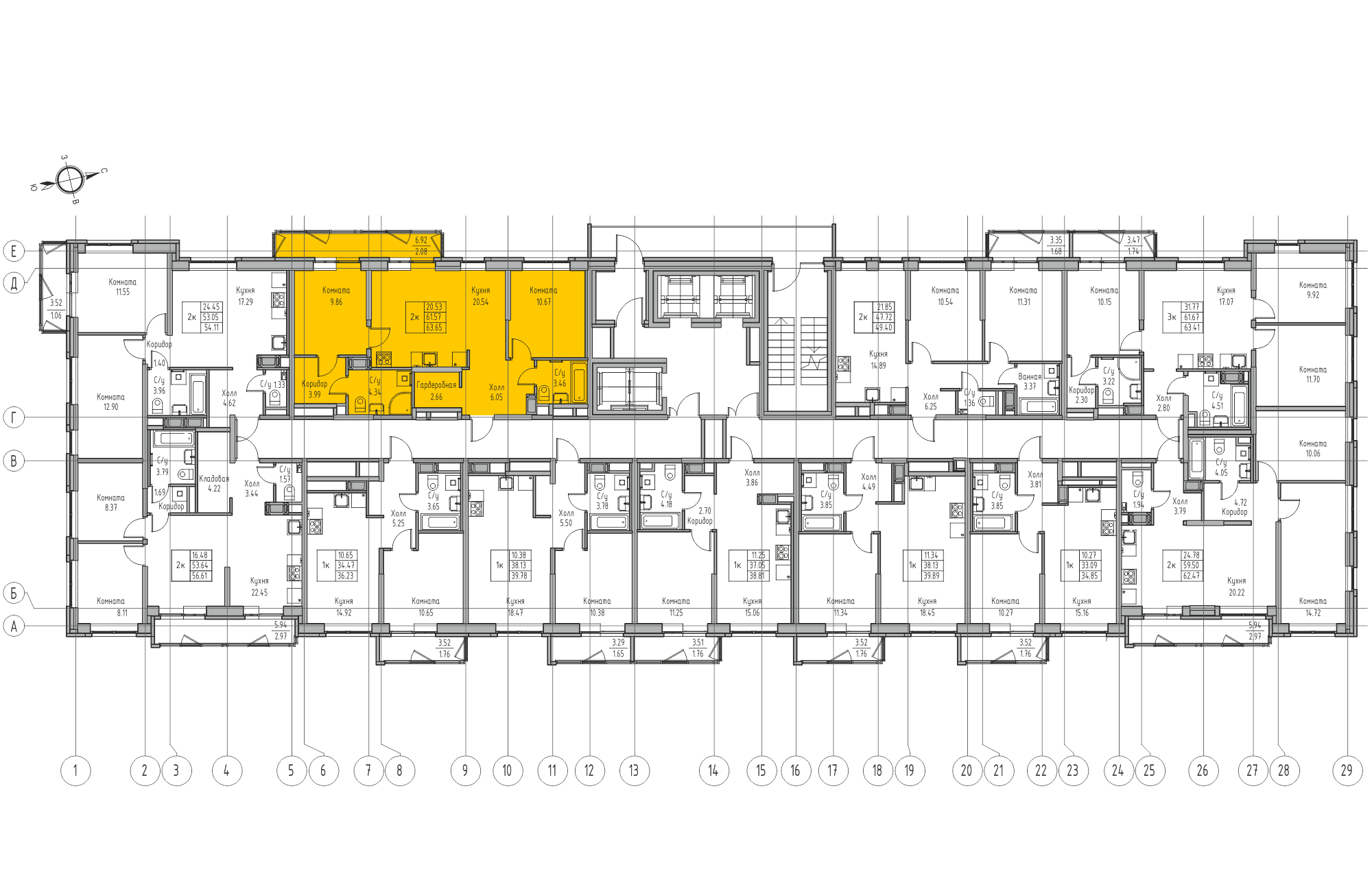
            3-к eвро 63.36 м²
- 
                                        Со скидкой 7.26%
                                        Скидка действует при 100% оплате или не субсидированной ипотеке
- Срок сдачи — 2 кв. 2026
Помещение продано
- Очередь 7 очередь
- Корпус 9 корпус
- Этаж 7 этаж из 22
- Номер 75
- Тип 2-53Y Все квартиры
- Отделка Комфорт светлый Подробнее
- Комфорт-класс
- Мастер-спальня
- Раздельный СУ
- Кухня проходная
- Приватный двор
- потолки 2,75 м
- С балконом
Скидка 20%
Скидка 20%. Скидка действует при 100% оплате или не субсидированной ипотеке.
Жить в окружении зелени, просыпаясь под шелест листьев и пение птиц, наблюдать за сезонными перевоплощениями природы за окном и наслаждаться чистым воздухом. Вдумчивые прогулки по зеленым аллеям или же пробежки по экотропам Юнтоловского заказника.
В ПАРК-КВАРТАЛЕ все окружение задает тон гармоничному и бережному отношению к себе.
 
                     
                     
                     
                    Одобрение ипотеки по 2 документам за 5 минут
Бесплатная консультация с кредитным специалистом по номеру 8 (812) 604 04 04 ежедневно с 9:00 до 18:00

Рядом с домом
Сделайте проживание в своём жилом комплексе ещё удобнее
 
                                    Список рекомендованных помещений
3-к eвро 49.4 м²
- 7 очередь
- 8 корпус
- 7 этаж
- Срок сдачи 2 кв. 2026
13 963 600 ₽
- Комфорт-класс
- 
                                                                
                                                                    
                                                                        +4
                                                                    
                                                                
                                                                Раздельный СУ Приватный двор потолки 2,75 м С балконом
3-к eвро 50.39 м²
- 7 очередь
- 9 корпус
- 6 этаж
- Срок сдачи 2 кв. 2026
13 864 080 ₽
- Комфорт-класс
- 
                                                                
                                                                    
                                                                        +4
                                                                    
                                                                
                                                                Раздельный СУ Приватный двор потолки 2,75 м С балконом
3-к eвро 51.09 м²
- 7 очередь
- 5 корпус
- 6 этаж
- Срок сдачи 1 кв. 2026
15 754 480 ₽
- Комфорт-класс
- 
                                                                
                                                                    
                                                                        +5
                                                                    
                                                                
                                                                Мастер-спальня Раздельный СУ Кухня проходная Приватный двор С балконом
3-к eвро 56.58 м²
- 7 очередь
- 8 корпус
- 6 этаж
- Срок сдачи 2 кв. 2026
15 351 280 ₽
- Комфорт-класс
- 
                                                                
                                                                    
                                                                        +6
                                                                    
                                                                
                                                                Кладовая Раздельный СУ Кухня проходная Приватный двор потолки 2,75 м С балконом
3-к eвро 62.47 м²
- 7 очередь
- 8 корпус
- 8 этаж
- Срок сдачи 2 кв. 2026
16 869 070 ₽
- Комфорт-класс
- 
                                                                
                                                                    
                                                                        +5
                                                                    
                                                                
                                                                Раздельный СУ Кухня проходная Приватный двор потолки 2,75 м С балконом
3-к eвро 56.15 м²
- 7 очередь
- 9 корпус
- 5 этаж
- Срок сдачи 2 кв. 2026
15 485 450 ₽
- Комфорт-класс
- 
                                                                
                                                                    
                                                                        +5
                                                                    
                                                                
                                                                Раздельный СУ Кухня проходная Приватный двор потолки 2,75 м С балконом
3-к eвро 56.29 м²
- 7 очередь
- 9 корпус
- 9 этаж
- Срок сдачи 2 кв. 2026
15 675 690 ₽
- Комфорт-класс
- 
                                                                
                                                                    
                                                                        +5
                                                                    
                                                                
                                                                Раздельный СУ Кухня проходная Приватный двор потолки 2,75 м С балконом
3-к eвро 56.58 м²
- 7 очередь
- 8 корпус
- 9 этаж
- Срок сдачи 2 кв. 2026
15 437 880 ₽
- Комфорт-класс
- 
                                                                
                                                                    
                                                                        +6
                                                                    
                                                                
                                                                Кладовая Раздельный СУ Кухня проходная Приватный двор потолки 2,75 м С балконом
3-к eвро 56.15 м²
- 7 очередь
- 9 корпус
- 4 этаж
- Срок сдачи 2 кв. 2026
15 478 650 ₽
- Комфорт-класс
- 
                                                                
                                                                    
                                                                        +5
                                                                    
                                                                
                                                                Раздельный СУ Кухня проходная Приватный двор потолки 2,75 м С балконом
3-к eвро 56.58 м²
- 7 очередь
- 8 корпус
- 10 этаж
- Срок сдачи 2 кв. 2026
15 462 080 ₽
- Комфорт-класс
- 
                                                                
                                                                    
                                                                        +6
                                                                    
                                                                
                                                                Кладовая Раздельный СУ Кухня проходная Приватный двор потолки 2,75 м С балконом
3-к eвро 56.7 м²
- 7 очередь
- 5 корпус
- 4 этаж
- Срок сдачи 1 кв. 2026
15 973 800 ₽
- Комфорт-класс
- 
                                                                
                                                                    
                                                                        +4
                                                                    
                                                                
                                                                Раздельный СУ Кухня проходная Приватный двор С балконом
Попробуйте позже
 
                                     
                                                     
                                                     
                                                     
                                                     
                                                     
                                                     
                                                     
                                                     
                                                     
                                                     
                                                    